Bahia del Velerin 4.7
Located between Marbella and Estepona, Bahía del Velerín is a prestigious community with a beautiful pool area, a snack bar, lush tropical gardens, and 24/7 security.

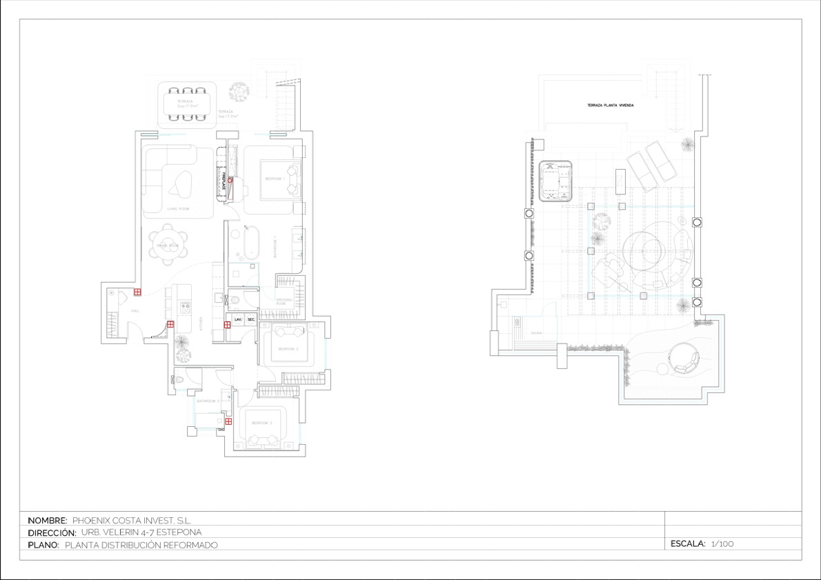
Beds
3

Baths
2

Built
134

Terrace
183



Highlights
This fully renovated penthouse boasts unobstructed sea views, a new designer kitchen, and a Bang & Olufsen TV and sound system. All electrical installations are newly updated, reflecting our commitment to German-quality craftsmanship.
Storage RoomB&O Sound SystemBBQSaunaInvisible HobElectric FireplaceRooftop TerraceJacuzziFree standing Bath TubDouble DishwasherThermomixBio-Ethanol FireplaceWalk-In ClosetHidden LaundryConservatoryJapanese ToiletsUnderfloor heating
Storage Room
B&O Sound System
BBQ
Sauna
Invisible Hob
Electric Fireplace
Rooftop Terrace
Jacuzzi
Free standing Bath Tub
Double Dishwasher
Thermomix
Bio-Ethanol Fireplace
Walk-In Closet
Hidden Laundry
Conservatory
Japanese Toilets
Underfloor heating
Interior
Made to the highest standards, the expansive living room and master bedroom offer breathtaking, direct sea views, while the private rooftop terrace provides the perfect spot to unwind and take in the stunning surroundings.































